優質的服務流程
· quality of service processes ·

需求溝通傾聽客戶需求,了解用戶使用環境和現場工況
方案設計根據現場實際工況,針對性出具解決方案
合同簽訂技術和商務規范確認,簽訂合作協議
產品制作選擇最優質的元器件,嚴格按照技術協議
調試安裝現場規范安裝,靜態動態調試,分析儀運行
售后服務后續維護,持續跟進,終身維修

全國熱線
銷售熱線
公司地址山東濟南市槐蔭區太平河南路1567號均和云谷濟南匯智港6號樓

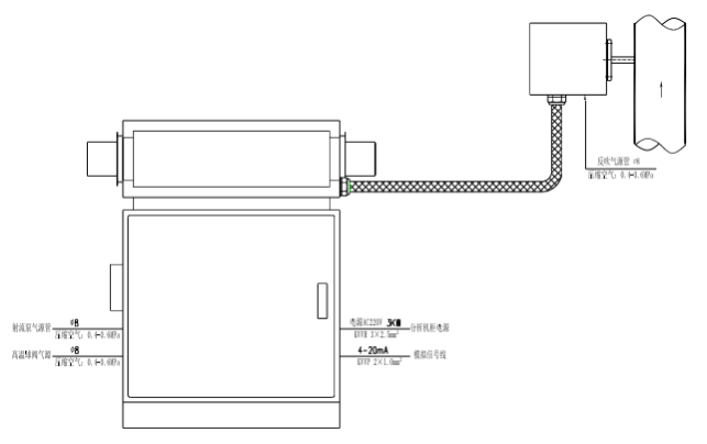
山東新澤儀器有限公司生產的TK-1100型氨逃逸在線監測系統采用高溫伴熱抽取技術+TDLAS技術(可調諧半導體激光光譜吸收技術),對脫硝過程中的逃逸氨進行連續在線監測,系統由取樣及傳輸單元、預處理及控制單元、分析單元三部分構成,主要應用于眾多工業領域氣體排放監測和過程控制,例如:燃煤發電廠、鋁廠、鋼鐵廠、冶煉廠、垃圾發電站、水泥廠和化工廠、玻璃廠等。
技術優勢
●可靠的長光程加熱氣室設計,光程可達760mm;
●超低濃度測量,分辨率可達0.1ppm;
●半導體激光的譜寬小于0.001nm,避免粉塵和水分交叉干擾;
●設備維護簡單,使用成本低。


需求溝通傾聽客戶需求,了解用戶使用環境和現場工況
方案設計根據現場實際工況,針對性出具解決方案
合同簽訂技術和商務規范確認,簽訂合作協議
產品制作選擇最優質的元器件,嚴格按照技術協議
調試安裝現場規范安裝,靜態動態調試,分析儀運行
售后服務后續維護,持續跟進,終身維修